Feuerwehrlaufkarten nach DIN 14675 – einfach online beauftragen
Feuerwehrlaufkarten zeigen der Feuerwehr die Angriffswege von der Brandmelderzentrale zur ausgelösten Meldergruppe. Die Ausführung erfolgt doppelseitig und in der Regel mit Reitern.
Wir erstellen für Sie Feuerwehrlaufkarten auf Grundlage der Brandmelder-Planung
normgerecht – nach geltender DIN 14675
preiswert – durch gestaffelte Kalkulation
schnell – durch standardisierte Prozesse
Wir freuen uns auf Ihre Anfrage und erstellen Ihnen gern ein individuelles Angebot.
Transparente Preisgestaltung Inkl. Analyse Ihrer Unterlagen

Feuerwehrlaufkarten nach DIN 14675:
Alles Wichtige im Überblick
Einführung in Feuerwehrlaufkarten
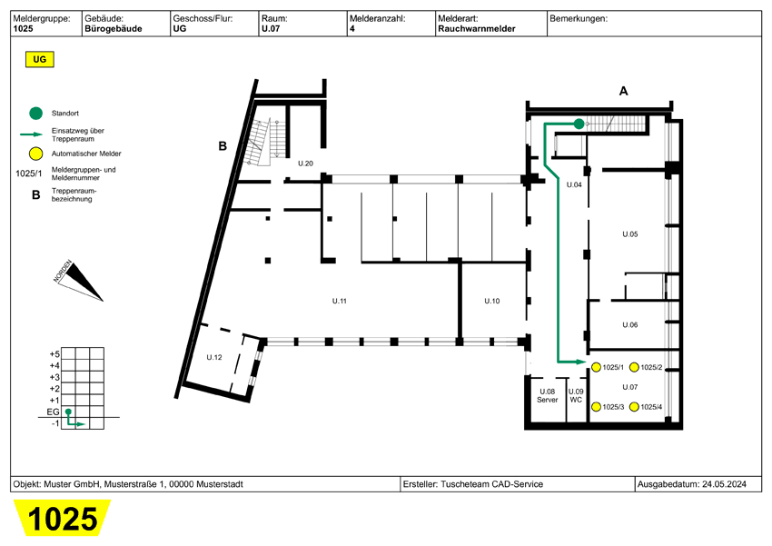
Feuerwehrlaufkarten, auch Meldergruppenpläne oder Linienpläne genannt, sind ein essenzieller Bestandteil jeder Brandmeldeanlage (BMA). Sie dienen der Orientierung und schnellen Einsatzplanung der Feuerwehr im Brandfall.
Sie enthalten detaillierte Informationen über den Standort von Brandmeldern, den Laufweg,wichtigen Brandschutzeinrichtungen und ermöglichen nach Alarmierung das Auffinden des Brandortes.
Die Gestaltung dieser Laufkarten ist durch die DIN 14675 geregelt, die spezifische Anforderungen und Formate vorgibt.
Anforderungen nach DIN 14675
Inhalte und Gestaltung
Feuerwehrlaufkarten müssen nach DIN 14675 bestimmte Inhalte und eine klare Struktur aufweisen.
Zu den wichtigsten Elementen gehören:
- Meldergruppen: Diese zeigen die genaue Position und die Art der Brandmelder an.
- Laufwege: Sie geben den schnellsten und sichersten Weg von der BMZ (Brandmelderzentrale) bzw. vom Feuerwehr Bedienfeld oder Feuerwehr Anzeigetableau zum Brandort an. Ein Laufweg kann überblick
- Objektspezifische Details: Dazu gehören Informationen über besondere Gefahrenstellen und sicherheitsrelevante Einrichtungen wie das Feuerwehrbedienfeld und das Feuerwehranzeigetableau.
- Format: Typische Formate sind DIN A4 und DIN A3, wobei die Übersichtlichkeit und Lesbarkeit stets gewährleistet sein müssen. Bei den DIN Formaten DIN A5 und DIN A4 muss besonders darauf geachtet werden, dass Mindestschrifthöhen eingehalten werden.
- Legende, Gebäudeschnitt und Nordpfeil
- Vorder Rückseite: die Vorderseite zeigt den Weg von der BMZ durch das Objekt zum Treppenhaus bzw. Feuerwehraufzug an. Die Rückseite zeigt den Weg im Geschoss des Brandortes bis zum Ort des ausgelösten Brandmelders.








Ausführung und Platzierung
FW Laufkarten müssen an gut sichtbaren und leicht zugänglichen Stellen im Gebäude angebracht werden. Dies umfasst die Feuerwehrinformationszentrale (FIZ), die Brandmeldezentrale (BMZ) und weitere zentrale Punkte innerhalb des Objekts.
Erstellung von Feuerwehrlaufkarten
Planung und Durchführung
Die Erstellung von FW Laufkarten erfordert eine sorgfältige Planung und präzise Durchführung:
- Erhebung der Gebäudedaten: Alle relevanten Daten des Gebäudes, einschließlich der Positionen der Brandmelder, Meldergruppe, Fluchtwege und Brandschutzeinrichtungen, müssen erfasst werden.
- Erstellung der Feuerwehrlaufkarte: Die gesammelten Daten werden in ein klares und verständliches Layout übertragen. Hierbei sind die Vorgaben der DIN 14675 strikt einzuhalten.
- Überprüfung und Aktualisierung: Die Laufkarten sollten regelmäßig überprüft und bei Änderungen im Gebäude aktualisiert werden, um die Genauigkeit und Verlässlichkeit zu gewährleisten.
Bedeutung der Feuerwehrlaufkarten für die Brandbekämpfung
FW Laufkarten spielen eine entscheidende Rolle in der effektiven Brandbekämpfung. Sie ermöglichen den Einsatzkräften eine schnelle Orientierung und unterstützen bei der Planung und Durchführung von Evakuierungen und Löscharbeiten.
Durch die präzise Angabe der Laufwege und Standorte von Brandmeldern und -meldergruppen kann die Feuerwehr schnell und gezielt reagieren.
Fazit
Feuerwehrlaufkarten nach DIN 14675 sind unverzichtbar für die Sicherheit und effiziente Brandbekämpfung in Gebäuden. Ihre sorgfältige Planung, Erstellung und regelmäßige Aktualisierung sind wesentliche Faktoren für ein funktionierendes Brandschutzsystem.
Durch die Einhaltung der DIN-Normen und die Integration in das gesamte Sicherheitskonzept kann das Risiko im Brandfall erheblich reduziert werden.
Häufige Fragen
Wann werden Feuerwehrlaufkarten benötigt? Feuerwehrlaufkarten werden benötigt, wenn bauliche Anlagen mit Brandmeldeanlagen (BMA) ausgestattet sind, die an eine konzessionierte Empfangsanlage in der Leitstelle der Feuerwehr aufgeschaltet sind.
Wer erstellt die Feuerwehrlaufkarten? Feuerwehrlaufkarten werden in der Regel von Fachfirmen erstellt, die sich auf Brandschutz und Sicherheitstechnik spezialisiert haben.
Was kostet eine Feuerwehrlaufkarte? Die Kosten für die Erstellung von Feuerwehrlaufkarten können je nach Größe und Komplexität des Gebäudes variieren. Gern erstellen wir Ihnen ein Angebot.
Wo befinden sich die Feuerwehrlaufkarten? Feuerwehrlaufkarten befinden sich am Standort der Brandmeldezentrale (BMZ) bzw. der Erstinformationsstelle der Feuerwehr und sind in einem Behältnis gegen unberechtigte Entnahme gesichert.
Wann sind Feuerwehrlaufkarten erforderlich? Feuerwehrlaufkarten sind erforderlich, wenn eine Brandmeldeanlage installiert ist, die an eine konzessionierte Empfangsanlage in der Leitstelle der Feuerwehr aufgeschaltet ist.
Was ist eine Laufkarte? Eine Laufkarte ist ein Hilfsmittel für die Orientierung der Einsatzkräfte der Feuerwehr, um den ausgelösten Brandmelder und den Brandort schnell und sicher im Gebäude zu finden.
Wer darf Feuerwehrpläne erstellen? Feuerwehrpläne dürfen von qualifizierten Fachfirmen erstellt werden, die über entsprechende Kenntnisse und Erfahrung im Bereich Brandschutz und Sicherheitstechnik verfügen.
Was steht in der DIN 14675? Die DIN 14675 regelt die Anforderungen an den Aufbau und Betrieb von Brandmeldeanlagen, einschließlich der Erstellung und Bereitstellung von Feuerwehrlaufkarten.
Wer darf Feuerwehr Laufkarte erstellen? Feuerwehrlaufkarten dürfen von qualifizierten Fachfirmen erstellt werden, die über entsprechende Kenntnisse und Erfahrung im Bereich Brandschutz und Sicherheitstechnik verfügen.
Wer prüft Feuerwehrlaufkarten nach DIN 14675? Feuerwehrlaufkarten werden in der Regel durch die zuständige Feuerwehr und gegebenenfalls durch die Bauaufsichtsbehörde geprüft.
Sind Feuerwehr Laufkarten Pflicht? Ja, Feuerwehrlaufkarten sind Pflicht für Gebäude mit Brandmeldeanlagen, die an die Leitstelle der Feuerwehr aufgeschaltet sind.
Wie viele Feuerwehrlaufkarten nach DIN 14675? Die Anzahl der benötigten Feuerwehrlaufkarten hängt von der Größe und Komplexität des Gebäudes sowie der Anzahl der Meldergruppen ab.
Was steht auf Feuerwehr Laufkarte? Auf Feuerwehrlaufkarten stehen Informationen zur Gebäudeübersicht, den Grundrissen, dem Standort der Brandmeldezentrale, der Meldergruppe, Laufwege sowie weitere relevante Details.
Wer aktualisiert Feuerwehr Laufkarten? Der Betreiber der Brandmeldeanlage ist verantwortlich für die Aktualisierung der Feuerwehrlaufkarten bei Änderungen im Gebäude oder an der Brandmeldeanlage. Oft werden Fachfirmen mit der Aktualisierung beauftragt.
Was kostet die Erstellung eines Feuerwehrplans? Die Kosten für die Erstellung eines Feuerwehrplans können je nach Größe und Komplexität des Gebäudes variieren. Gerne erstellen wir Ihnen ein individuelles Angebot.
Wer darf Brandschutzpläne erstellen? Brandschutzpläne dürfen von qualifizierten Fachfirmen erstellt werden, die über entsprechende Kenntnisse und Erfahrung im Bereich Brandschutz und Sicherheitstechnik verfügen.
Wer macht die Feuerwehr Laufkarten? Feuerwehrlaufkarten werden von spezialisierten Fachfirmen erstellt, die sich mit der Installation und Wartung von Brandmeldeanlagen auskennen.
Wann müssen Feuerwehrlaufkarten erneuert werden? Feuerwehrlaufkarten müssen erneuert werden, wenn es Änderungen im Gebäude oder an der Brandmeldeanlage gibt, die die bestehenden Karten beeinflussen.
Wann sind Feuerwehrpläne notwendig? Feuerwehrpläne sind notwendig für bauliche Anlagen, die einer besonderen Brandgefahr ausgesetzt sind und/oder über Brandmeldeanlagen verfügen.
Welche Gebäude brauchen einen Feuerwehrplan? Gebäude, die über eine Brandmeldeanlage verfügen oder einer besonderen Brandgefahr ausgesetzt sind, benötigen einen Feuerwehrplan.
Was kostet ein Feuerwehrplan? Die Kosten für einen Feuerwehrplan können je nach Größe und Komplexität des Gebäudes variieren. Gerne erstellen wir Ihnen ein individuelles Angebot.
Was kostet ein Flucht- und Rettungsplan? Die Kosten für einen Flucht- und Rettungsplan können je nach Größe und Komplexität des Gebäudes variieren. Gerne erstellen wir Ihnen ein individuelles Angebot.
Wann braucht man Feuerwehr Laufkarten? Feuerwehrlaufkarten werden benötigt, wenn bauliche Anlagen mit Brandmeldeanlagen ausgestattet sind, die an eine konzessionierte Empfangsanlage in der Leitstelle der Feuerwehr aufgeschaltet sind.
Sind die Reiter bereits ausgestanzt?
Wir bieten Ihnen Druck und Lieferung der Laufkarten inkl. Ausstanzen der Reiter – das Ergebnis ist sofort verwendbar und benötigt keine weitere Nachbearbeitung durch Sie.
Lassen Sie uns zusammenarbeiten
IHRE ANFORDERUNGEN
Welche Art von Plänen benötigen Sie? Geht es um ein Einzelprojekt, oder die Suche nach einem langfristigen CAD-Outsourcing-Partner? Bitte teilen Sie uns Details im Nachrichtenfeld für ein maßgeschneidertes Angebot mit.
UNSERE PROZESSE
Mit über 10 Jahren Erfahrung als Architekten und Ingenieure bieten wir branchenspezifische CAD-Pläne von höchster Qualität. Seit 2012 verbessern wir unsere Prozesse stetig, um Ihnen den besten Service zu bieten.
GEMEINSAM ZUM ZIEL
Nach Auftragserteilung erhalten Sie regelmäßige Fortschrittsupdates und Vorabzüge per E-Mail. Zum Projekt-abschluss liefern wir Ihnen alle vereinbarten CAD-Formate und auf Wunsch gedruckte Unterlagen.
Angebotsanfrage
1. Kontaktformular ausfüllen
Als Kalkulationsgrundlage benötigen wir für alle angebotenen Leistungen ihre vorhandenen Planunterlagen. Dies können Scans / Fotos Ihrer Unterlagen, PDF-Dateien, Skizzen oder CAD-Daten sein. Ihre Daten und Unterlagen behandeln wir streng vertraulich.
2. Angebot erhalten
Ihre Anfrage wird in der Regel innerhalb von zwei Werktagen bearbeitet. Wir senden Ihnen ein kostenloses und unverbindliches Angebot über die angefragten Leistungen per E-Mail. Bei Rückfragen kontaktieren wir Sie auf Wunsch auch gern telefonisch.

verwenden diese ausschließlich zur Angebotserstellung.

Wir geben Ihre Daten niemals an Dritte weiter und verwenden diese ausschließlich zur Angebotserstellung.