CAD-Zeichnungen
einfach online beauftragen
Wir sind Ihr CAD-Zeichenbüro und Outsourcing Dienstleister.
Spezialisiert auf:
• Flucht- und Rettungspläne
• Feuerwehrpläne
• weitere Brandschutzpläne
Gern unterstützen wir Ihr Unternehmen auch mit maßgeschneiderten
CAD-Service Lösungen:
• Vektorisierung Architektur
• Skizze zu Zeichnung & Modell
Transparente Preisgestaltung Inkl. Analyse Ihrer Unterlagen
CAD-Zeichnungen
einfach online beauftragen
Wir sind Ihr CAD-Zeichenbüro und Outsourcing Dienstleister.
Spezialisiert auf:
• Flucht- und Rettungspläne
• Feuerwehrpläne
• weitere Brandschutzpläne
Gern unterstützen wir Ihr Unternehmen auch mit maßgeschneiderten
CAD-Service Lösungen:
• Vektorisierung Architektur
• Skizze zu Zeichnung & Modell
Transparente Preisgestaltung Inkl. Analyse Ihrer Unterlagen
Transparente Preisgestaltung
Inkl. Analyse Ihrer Unterlagen
CAD-Outsourcing für Unternehmen
Mehr Kapazität durch externes Zeichenbüro
Konzentration auf das Kerngeschäft: Sie können sich auf Ihre Kernkompetenzen und strategischen Ziele konzentrieren, anstatt sich mit CAD-bezogenen Aufgaben aufzuhalten.
Kosteneinsparungen: Wenn Sie CAD-Dienstleistungen an uns auslagern, können Sie Kosten für Software und Ausrüstung sparen und diese Ressourcen in andere Bereiche Ihres Unternehmens investieren.
Gesteigerte Effizienz: Unser Team verfügt über branchenspezifisches Fachwissen und optimiert fortlaufend die internen Prozesse – dies führt zu schnelleren Durchlaufzeiten und besseren Projektergebnissen, so dass Sie Fristen einhalten und die Erwartungen Ihrer Kunden übertreffen können.
Flexibilität und Skalierbarkeit: Durch die Auslagerung Ihrer CAD-Zeichnungen können Sie den Umfang der eingesetzten Ressourcen je nach Bedarf anpassen, so können Sie schwankendes Arbeitsaufkommen und Auftragsspietzen besser abfangen.
Maßgeschneiderte Lösungen und Whitelabel Service: Wir bieten individuelle Lösungen, die Ihre spezifischen CAD-Standards berücksichtigen und Ihnen helfen, die bestmöglichen Ergebnisse zu erzielen.

Wie können wir Sie am besten unterstützen?
Wir freuen uns auf Ihre Anfrage!
Ihr Tom Neubert
Geschäftsleitung
Lassen Sie uns zusammenarbeiten
IHRE ANFORDERUNGEN
Welche Art von Plänen benötigen Sie? Geht es um ein Einzelprojekt, oder die Suche nach einem langfristigen CAD-Outsourcing-Partner? Bitte teilen Sie uns Details im Nachrichtenfeld für ein maßgeschneidertes Angebot mit.
UNSERE PROZESSE
Mit über 10 Jahren Erfahrung als Architekten und Ingenieure bieten wir branchenspezifische CAD-Pläne von höchster Qualität. Seit 2012 verbessern wir unsere Prozesse stetig, um Ihnen den besten Service zu bieten.
GEMEINSAM ZUM ZIEL
Nach Auftragserteilung erhalten Sie regelmäßige Fortschrittsupdates und Vorabzüge per E-Mail. Zum Projekt-abschluss liefern wir Ihnen alle vereinbarten CAD-Formate und auf Wunsch gedruckte Unterlagen.
CAD-Dienstleistungen – Brandschutz

Flucht- und Rettungsplan nach DIN ISO 23601
Ein Flucht- und Rettungsplan bietet für Personen in Gebäuden die Sicherheit im Ernstfall: er stellt Fluchtwege, Sicherheits- und Löscheinrichtungen, sowie Informationen zum Verhalten im Brandfall in Gebäuden dar.
Als Zeichenbüro erstellen wir für Sie Flucht- und Rettungspläne nach geltenden Normen - fordern Sie ein unverbindliches und kostenloses Angebot an.

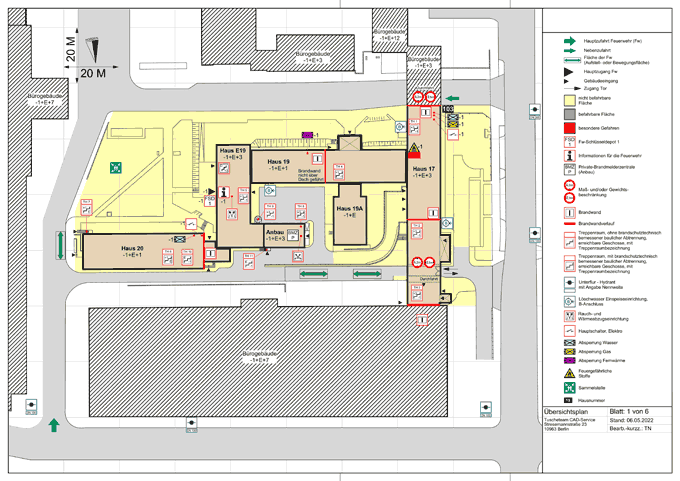
Feuerwehrplan nach
DIN 14095
Ein Feuerwehrplan dient der Feuerwehr zur Orientierung im Einsatz. Er besteht aus drei Teilen:
Der Übersichtsplan zeigt Anfahrtswege und Sicherheitseinrichtungen in Gebäudenähe. Die Geschosspläne geben detaillierten Aufschluss über Angriffswege, Löscheinrichtungen und Gefahrenquellen in den einzelnen Geschossen. Der Textteil enthält weitergehende Informationen.

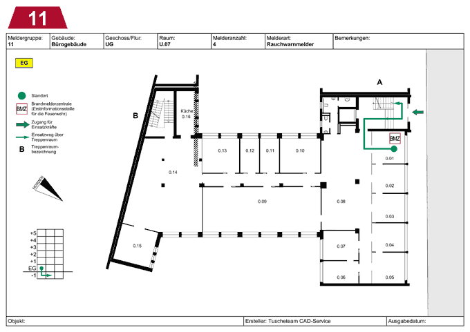
Feuerwehrlaufkarte nach
DIN 14675
In größeren Unternehmen oder öffentlichen Gebäuden kommen Brandmeldeanlagen zum Einsatz. Feuerwehrlaufkarten zeigen der Feuerwehr im Einsatzfall den Weg von der Brandmeldezentrale im Gebäude bis zum ausgelösten Brandmelder.
Die genaue Darstellung des Angriffswegs ermöglicht einen gezielten Löschangriff. Die Laufkarten werden in der Nähe der Brandmeldezentrale aufbewahrt.

Rettungsplan Hotel - Zimmerplan
DIN ISO 23601
Benötigen Sie für Ihr Hotel Flucht- und Rettungspläne? Gern erstellen wir für Sie gänzlich neue Pläne oder aktualisieren Ihre bestehenden Pläne im Rahmen eines Umbaus, einer Renovierung oder der allgemeinen Überholung Ihrer Brandschutzunterlagen.

Brandschutzordnung nach
DIN 14096
Wir erstellen Brandschutzordnungen Teil B – für die Mitarbeiter eines Betriebs und Brandschutzordnungen Teil C – für Personen mit besonderen Brandschutzaufgaben. Nach geltenden Normen und in Abstimmung mit den zuständigen Stellen.

Weitere Pläne für den organisatorischen Brandschutz
- Zuarbeit für Planer, Ingenieure und Brandschutzbüros
- Zeichenarbeiten für Brandschutzkonzepte
- Brandschutzpläne nach Schweizer VKF Norm und nach Österreichischer TRVB 121
Auch Teilschritte Ihrer bestehenden Prozesse können Sie an uns auslagern.
CAD-Dienstleistungen – Gebäude

Vektorisierung und Planaufbereitung Architektur
Oft liegen Bestandspläne von Gebäuden nur in Papierform vor. Für Umbaumaßnahmen, Modernisierungen oder CAFM-Implementierung werden hingegen maßhaltige CAD-Daten benötigt.
Beim Zeichnungen digitalisieren werden die Gebäudegrundrisse auf Grundlage der Maßketten in den Papierplänen neu konstruiert. So kann eine solide Grundlage für die folgenden Planungsschritte geschaffen werden.

TGA Revisionspläne / Bestandspläne
Revisionspläne sind von der ausführenden Firma nach VOB geforderte Unterlagen, die die tatsächlich gebauten Elemente im Gebäude dokumentieren. Die Ablieferung muss in der Regel in Form von CAD-Zeichnungen erfolgen.
Wir bieten Ihnen die Erstellung von Revisionsplänen durch die Zusammenführung von handschriftlichen Notizen von der Baustelle und der ursprünglichen Ausführungsplanung an.

Visualisierungen und fotorealistische Renderings
Ob bei der Produktentwicklung, Verkaufs-Präsentation oder der Planung von Gebäuden – Visualisierungen und Renderings ermöglichen die Darstellung von 3D-Modellen als fotonahe oder fotorealistische Abbildung in hoher Auflösung.
Unser Zeichenbüro erstellt für Sie sowohl die entsprechenden 3D-Modelle aus Ihren 2D-Zeichnungen, als auch die Renderings in Ihrer gewünschten Darstellungsqualität.
Weitere Leistungen und Technische Zeichnungen
Klicken Sie auf eines der nachfolgenden Themen, um mehr zu erfahren:
Angebotsanfrage
1. Kontaktformular ausfüllen
Als Kalkulationsgrundlage benötigen wir für alle angebotenen Leistungen ihre vorhandenen Planunterlagen. Dies können Scans / Fotos Ihrer Unterlagen, PDF-Dateien, Skizzen oder CAD-Daten sein. Ihre Daten und Unterlagen behandeln wir streng vertraulich.
2. Angebot erhalten
Ihre Anfrage wird in der Regel innerhalb von zwei Werktagen bearbeitet. Wir senden Ihnen ein kostenloses und unverbindliches Angebot über die angefragten Leistungen per E-Mail. Bei Rückfragen kontaktieren wir Sie auf Wunsch auch gern telefonisch.

verwenden diese ausschließlich zur Angebotserstellung.

Wir geben Ihre Daten niemals an Dritte weiter und verwenden diese ausschließlich zur Angebotserstellung.
