Baupläne digitalisieren / Grundrisse vektorisieren /
Paper to CAD
Wir digitalisieren Ihre Baupläne und Grundrisse – von Scan oder Papier zu bearbeitbaren CAD-Dateien durch professionelle manuelle Neukonstruktion.
Wir bieten Ihnen die fachgerechte Umwandlung von CAD-Plänen an –
kompatibel – in allen CAD-Formaten
preiswert – durch gestaffelte Kalkulation
schnell – durch standardisierte Prozesse
Wir freuen uns auf Ihre Anfrage und erstellen Ihnen gern ein individuelles Angebot.
Transparente Preisgestaltung Inkl. Analyse Ihrer Unterlagen

Informationen zur Vektorisierung
Paper 2 CAD
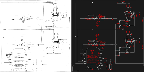
Bild- oder Scandateien enthalten Pixel-Informationen. Diese können nicht verlustfrei vergrößert und mit CAD-Software nicht weiterbearbeitet werden.
CAD-Pläne enthalten Vektor-Informationen. Dadurch, dass jeder Punkt im Raum durch exakte Zahlenwerte beschrieben ist, können die Zeichnungsinformationen für vielfältige Zwecke eingesetzt und weiter verarbeitet werden. Durch eine manuelle Neukonstruktion der Darstellung können CAD-Dateien aus Scans erstellt werden.
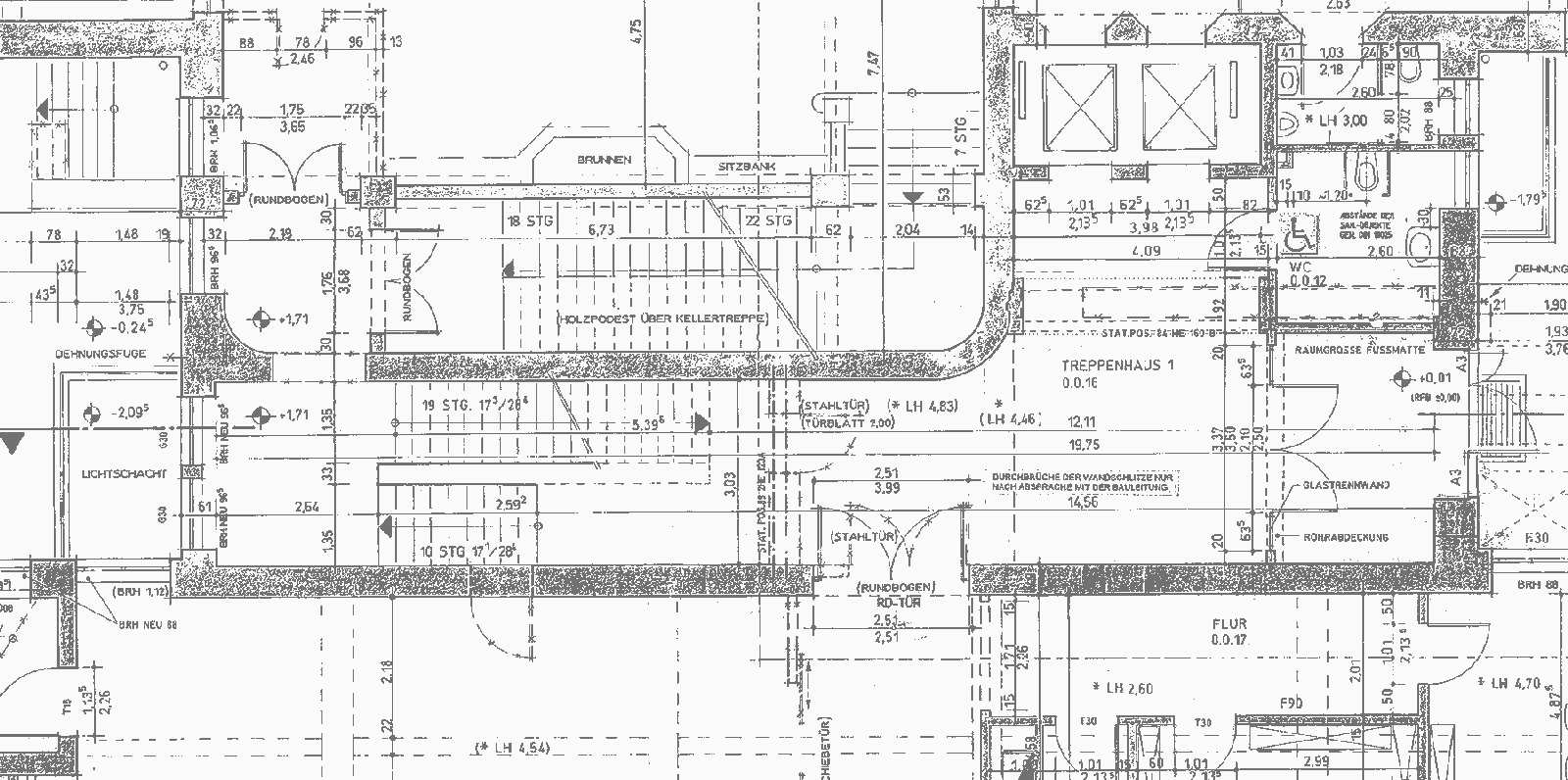
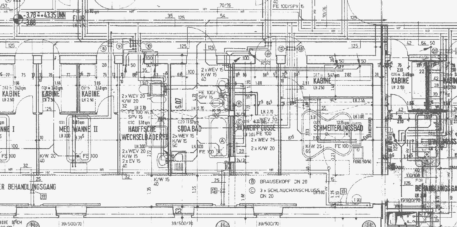
Die Baupläne von Bestandsgebäuden existieren oft nur in Papierform.
Für Baumaßnahmen, Instandsetzung, Renovierung, Flucht- und Rettungspläne, Verwaltung von Mieteinheiten oder auch Revisionspläne hingegen werden CAD-Pläne benötigt.
Die Digitalisierung von Bauzeichnungen ist ein Prozess, um Papierpläne für CAD-Systeme nutzbar zu machen. Dabei werden die Informationen aus den Plänen per CAD nachgezeichnet. Die Lage der Elemente wird somit durch exakte Zahlen beschrieben – man spricht daher auch vom Vektorisieren.
Unser Unternehmen bietet Ihnen eine professionelle Digitalisierung Ihrer Baupläne an, um Ihnen Zeit und Mühe zu ersparen. Dank unserer Erfahrung und modernster Software können wir Ihre Pläne digitalisieren und als PDF, DWG, DXF und in weiteren Formaten bereitstellen.
Auf einen Blick
- Präzision und Skalierbarkeit: Vektorzeichnungen sind detailgetreu und verlustfrei skalierbar.
- Effizienz: Digitalisierte Pläne erleichtern die Bearbeitung und Verwaltung.
- Expertise: Vertrauen Sie auf unsere Erfahrung und Kompetenz bei der Vektorisierung von Bauplänen.
Warum Bauzeichnungen vektorisieren?
Vektorisierte Grundrisse finden in vielen Bereichen Anwendung. Sie sind essenziell für Architektur- und Ingenieurbüros, die präzise Vorlagen für die Planung und Umsetzung von Bauprojekten benötigen.
Auch in der Gebäudeverwaltung und im Facility Management ist ein digitalisierter Bauplan die Grundlage zur effizienten Handhabung.
Für Verkaufszwecke oder zum Umbau von Immobilien sollte ebenso ein digitalisierter Bauplan vorliegen.
Möglichkeiten zum Digitalisieren von Papier Plänen
Automatische Vektorisierung
Hierbei kommen spezielle Softwaretools zum Einsatz, bei der die Erstellung von Vektorgrafiken aus Rasterbildern stattfindet. Dies ist schneller und kostengünstiger, jedoch in der Praxis bei weitem nicht so präzise wie die manuelle Methode.
Manuelle Vektorisierung
Die manuelle Vektorisierung ist ein Prozess, bei dem unsere erfahrenen Fachleute Baupläne und Zeichnungen sorgfältig nachzeichnen und digitalisieren. Dabei wird jedes Element des Plans präzise in eine Vektorgrafik umgewandelt. Dieser Ansatz bietet die höchste Genauigkeit und ist ideal für komplexe und detailreiche Zeichnungen.
Unsere Leistungen umfassen immer das Digitalisieren "von Hand" am Bildschirm mittels CAD-Programm – da nur so die höchste Qualität und Maßhaltigkeit der CAD-Zeichnungen sichergestellt werden kann.
Alte Pläne digitalisieren funktioniert nicht automatisiert – eine hohe Genauigkeit (trotz oftmals schwer erkennbarer Maßketten, Falten im Papier oder anderen Unkenntlichkeiten) ist nur durch die händische Konstruktion möglich. Bei der unsere Spezialisten den Gesamtplan nicht nur abgezeichnen, sondern vor allem die Konstruktionsweise des Gebäudes erkennen und so fehlende Maße herleiten.
CAD-Programme für die Vektorisierung von Bauzeichnungen
AutoCAD
AutoCAD ist seit seiner Einführung durch Autodesk im Jahr 1982 eines der führenden Programme für die Erstellung und Bearbeitung von CAD-Zeichnungen. Der Einfluss von AutoCAD ist derart groß, dass sich das AutoCAD eigene Format "DWG" als Standard-Austauschformat in der CAD-Branche etabliert hat.
Das DWG-Format enthält detaillierte Konstruktionsinformationen, einschließlich Geometrie, Ebenen, Farben, Materialien, Anmerkungen und Layouts in entsprechenden Maßstäben.
Unabhängig davon, welches CAD-Programm Sie verwenden, unterstützen wir Sie bei der Digitalisierung Ihrer Baupläne und stellen sicher, dass Ihre digitalen Zeichnungen in höchster Qualität und im richtigen Dateiformat geliefert werden. Unser Team aus Spezialisten freut sich über Ihre Anfrage.
Pläne Digitalisieren kosten
Zeichung vektorisieren – die Kosten für die Plandigitalisierung richten sich nach:
- Blattgröße (DIN A4, DIN A3, DIN A2, DINA1, DIN A0, Übergröße)
- Detaillierungsgrad der Zeichnungen (Bauantragszeichnungen 1:100, Ausführungsplanung 1:50, TGA-Pläne, Details etc.)
- Erkennbarkeit der Informationen / Qualität der Papierzeichnung und des Scans
Die Kosten sind daher sehr individuell und lassen sich schwer pauschal benennen. Unsere Projektleitung freut sich jedoch auf Ihre Anfrage und wird Ihnen in der Regel innerhalb eines Werktages ein unverbindliches Angebot zusenden.
Möchten Sie Ihre Papierpläne professionell digitalisieren lassen?
Erhalten Sie in Kürze Ihr kostenloses und unverbindliches Angebot!
Schritt-für-Schritt-Ablauf: Bauzeichnung und vektorisieren
Vorbereitung der Unterlagen
- Postalischer Eingang von Vorlagen und Dokumenten oder Empfang der Scans (1-5 entfallen in diesem Fall).
- Sicherstellen, dass die Originale sauber und frei von Beschädigungen sind.
- Jeden Papier Plan vor dem Scannen korrekt ausrichten, um den Aufwand der Weiterverarbeitung zu reduzieren.
- Scannen der Pläne auf einem Großformat Scanner bis DIN A0 Übergröße in einer hohen Auflösung. Als Scan Auflösung wird mindestens 300 dpi gewählt. Scannen in Farbe ist immer gegenüber Graustufen vorzuziehen.
- Speichern der Dateien und Scandaten in einem gängigen Format wie TIFF, JPG, JPEG, oder PDF.
Digitalisierungsprozess
- Import der Scan Dateien in CAD-Programm.
- Einrichten der Layerbelegungen nach Vorgaben oder auf Grundlage der Objekt Variabilität des Grundrisses.Bei der CAD Digitalisierung verwenden wir eine übersichtliche Layerordnung, bei der jede Bauteilkategorie auf eigenen Layern liegt. Falls Sie einen eigenen CAD-Standard oder Vorgaben haben, können wir diesen Standard beim CAD Pläne digitalisieren problemlos anwenden – die Pläne werden aussehen, als wären sie bei Ihnen Inhouse erstellt worden.
- Abgleich der Übereinstimmung zwischen Grundrissen, Schnitten, Ansichten eines Objekts.
- Wahl der besten Methode zur Harmonisierung aller Objekt Pläne: so dass bspw. die Breite und Länge des Gebäudes in allen finalen Dateien übereinstimmt, obwohl bspw. die Scans der Schnitte eine abweichende Breite und Länge zeigen.
- Zeichnen aller im Grundriss vorhandenen Objekte, Linien, Schraffuren, Maßketten, Anmerkungen, Texte, etc. in der korrekten Farbe.
- Speichern und Exportieren der Dateien in von Ihnen gewünschten Formaten.
- Lieferung per E-Mail oder über unsere verschlüsselte Cloud und auf Wunsch Archivierung der Dateien.
Mit unserer Unterstützung wird die Digitalisierung Ihres Bauplans effizient und präzise durchgeführt. Kontaktieren Sie uns, um von unserer Erfahrung und unseren bewährten Prozessen zu profitieren.
Weitere Möglichkeiten und Services
Unterstützung bei verschiedenen CAD-Formaten
Unser Service unterstützt eine Vielzahl von Dateiformaten, wie z.B. VWX, RVT, PLN, DXF, TIFF, IPT. Wir helfen Ihnen dabei, Ihre Pläne in das gewünschte Datenformat umzuwandeln und stellen sicher, dass alle Details korrekt übertragen werden.
Maßgeschneiderte Lösungen für Architekten, Ingenieure, Bauunternehmen, Produzierendes Gewerbe, Maschinen- und Anlagenbau.
Wir bieten maßgeschneiderte Lösungen an, die auf Ihre spezifischen Anforderungen abgestimmt sind. Dank unseres interdisziplinären Teams können wir Ihnen Zeichnungserstellung / Digitalisierung / Rekonstruktion für verschiedenen Anwendungen anbieten.
Beratung und Service
Unser kompetentes Team aus Experten steht Ihnen jederzeit zur Verfügung, um Sie bei Ihrem Projekt zu unterstützen. Kontaktieren Sie uns für ein unverbindliches Angebot.
FAQ
Wer digitalisiert Baupläne? Tuscheteam CAD-Service ist spezialisiert auf die Digitalisierung von Bauplänen. Wir freuen uns auf Ihre Anfrage und senden Ihnen in Kürze Ihr unverbindliches Angebot.
Wie kann ich meine Zeichnung digitalisieren? Lesen Sie dazu gern diesen Abschnitt oder Kontaktieren Sie uns um ein unverbindliches Angebot zu erhalten.
Kann man eine PDF-Datei in eine DWG umwandeln? Wie PDF in DXF umwandeln? Kontaktieren Sie uns gern mit einem Auszug Ihrer Dateien, wir stellen Ihnen den besten Weg zur Umwandlung vor.
Gibt es eine Mindestmenge für die Digitalisierung? Nein, gern bieten wir Ihnen auch das digitalisieren von einzelnen Plänen an.
Wie kann ich Bauzeichnungen und Pläne digitalisieren lassen? Möglichkeit 1: Sie lassen die Pläne bei einem Copyshop Ihrer Wahl hochauflösend scannen und stellen uns die Scans zur Verfügung. Möglichkeit 2: Sie senden uns die Originale postalisch und Erhalten nach Abschluss des Projekts sowohl Ihre Dokumente als auch die digitalisierten Dateien.
Können aus gescannten Bauplänen auch DWG Dateien erstellt werden? Dies ist die Definition der Digitalisierung von Bauplänen. Das DWG-Format ist dabei das gängiste Austauschformat. Auch andere Dateitypen sind möglich.
Wieviel kostet es, Baupläne digitalisieren zu lassen? Die Preise ergeben sich aus folgenden Faktoren: 1. Anzahl der Pläne
2. Lesbarkeit
3. Komplexität
4. Format (DIN A0, DIN A1, DIN A2, ...)
Einen konkreten Preis nennen wir Ihnen gern nach Einsicht Ihrer Originale.
Nutzen Sie dazu bitte unser Kontaktformular um ein Angebot anzufordern.
Wie schnell können Baupläne digitalisiert werden? Die Bearbeitungsdauer liegt in der Regel bei 7-10 Werktagen. Sprechen Sie uns gern an, wenn Sie die Pläne dringend benötigen.
Wie erhalte ich die Dokumente zurück? Die Dokumente erhalten Sie nach abgeschlossenem Scan Vorgang per Versand zurück.
In welchem Dateiformat werden die digitalisierten Zeichnungen gespeichert? Die Ergebnisse der Digitalisierung erhalten Sie immer als DWG und PDF. Auf Wunsch stellen wir Ihnen gern weitere Formate je nach Verwendungszweck zur Verfügung.
Möchten Sie Ihre Papierpläne professionell digitalisieren lassen?
Erhalten Sie in Kürze Ihr kostenloses und unverbindliches Angebot!
Lassen Sie uns zusammenarbeiten
IHRE ANFORDERUNGEN
Welche Art von Plänen benötigen Sie? Geht es um ein Einzelprojekt, oder die Suche nach einem langfristigen CAD-Outsourcing-Partner? Bitte teilen Sie uns Details im Nachrichtenfeld für ein maßgeschneidertes Angebot mit.
UNSERE PROZESSE
Mit über 10 Jahren Erfahrung als Architekten und Ingenieure bieten wir branchenspezifische CAD-Pläne von höchster Qualität. Seit 2012 verbessern wir unsere Prozesse stetig, um Ihnen den besten Service zu bieten.
GEMEINSAM ZUM ZIEL
Nach Auftragserteilung erhalten Sie regelmäßige Fortschrittsupdates und Vorabzüge per E-Mail. Zum Projekt-abschluss liefern wir Ihnen alle vereinbarten CAD-Formate und auf Wunsch gedruckte Unterlagen.
Angebotsanfrage
1. Kontaktformular ausfüllen
Als Kalkulationsgrundlage benötigen wir für alle angebotenen Leistungen ihre vorhandenen Planunterlagen. Dies können Scans / Fotos Ihrer Unterlagen, PDF-Dateien, Skizzen oder CAD-Daten sein. Ihre Daten und Unterlagen behandeln wir streng vertraulich.
2. Angebot erhalten
Ihre Anfrage wird in der Regel innerhalb von zwei Werktagen bearbeitet. Wir senden Ihnen ein kostenloses und unverbindliches Angebot über die angefragten Leistungen per E-Mail. Bei Rückfragen kontaktieren wir Sie auf Wunsch auch gern telefonisch.

verwenden diese ausschließlich zur Angebotserstellung.

Wir geben Ihre Daten niemals an Dritte weiter und verwenden diese ausschließlich zur Angebotserstellung.









